ALN-GYP
Anti-ligature Door with Drywall Bead Flange
Key operated cylinder cam latch, piano hinge, gasket
Ideal for mental health facilities, prisons and other high security environments, this hidden frame door, made of anti-tamper materials is designed to eliminate the risk of self-harm and provide a safe and secure environment
Technical specifications and dimensions
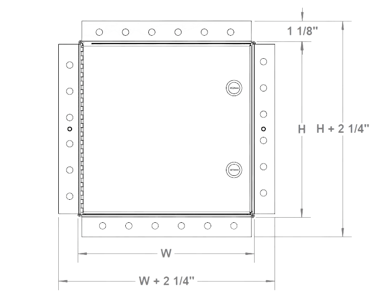
- Material
16-gauge cold rolled steel door and frame.
- Hinge
Continuous piano hinge. Hinge location: Hinges must be located on the second dimension (height).
- Locking mechanism
Key operated cylinder cam latch
- Flange
22-gauge galvanized steel, 1 ⅛" drywall bead flange
- Frame
1 5/8" " in depth, made of cold rolled steel
- Rough opening
Door sizes + ¼ " or + 6mm
- Gasketing
Neoprene around perimeter of door frame
- Finish
High quality white powder coat primer
- Packaging
Individually wrapped, 1 door per box
| Dimensions (Inches) | Dimensions (Millimeters) | Weight (LBS) | Weight (KG) | Number of locks |
|---|---|---|---|---|
| * 12 x 12 | 305 x 305 | 6.3 | 2.9 | 1 |
| * 16 x 16 | 406 x 406 | 9.4 | 4.3 | 1 |
| * 18 x 18 | 457 x 457 | 11.4 | 5.2 | 1 |
| * 24 x 24 | 610 x 610 | 17.8 | 8.1 | 1 |
| * 24 x 36 | 609 x 914 | 22 | 10 | 3 |
Technical drawings
Technical documentation
Availability
We maintain an inventory of over 42 popular sizes of access panels in our warehouses across North America, ready for next-day delivery or pickup. Refer to the size chart labels to check availability. If not in stock, we can manufacture it in 5 business days.
- Stocked in Montreal
- Stocked in Montreal & USA
- Not in stock. 5 days lead-time.
| Dimensions | Product SKU |
|---|---|
| 12 x 12 | AHD-GYP-12X12-60-110-1 |
| 16 x 16 | AHD-GYP-16X16-60-110-1 |
| 18 x 18 | AHD-GYP-18X18-60-110-1 |
| 24 x 24 | AHD-GYP-24X24-60-110-1 |
| 24 x 36 | |
Recommended products
-
Back to all products
AHD-60-110
Flush Universal Access Door with Exposed Flange
screwdriver-operated cam latch, piano hinge, gasket
Designed for quick and easy installation on non-rated walls and ceilings. The piano hinge and the gasket are used to reduce airflow between the panel and the frame.
VIEW PRODUCT -
Back to all products
CTR-60
Flush Universal Access Door with Hidden Flange
screwdriver operated cam latch, pantograph hinge, gasket
Designed for a more aesthetically pleasing finish, the panel, with its beveled edges, closes over the flange. The gasket is used to reduce airflow between the panel and the frame.
VIEW PRODUCT



